- この物件は、私が担当しました!
- 山中マイスター担当店舗 津店
和室と隣り合わせのダイニングキッチンは、スペースが手狭で、断熱材も入っておらず夏は暑く、冬は寒いことに悩まれていました。『人が集まっても開放感が感じられ、季節を通じて居心地が良く、自分たちの個性が表現できる空間』にリフォームすることにより、今以上に心地よい暮らしをしたいと思われていました。
お客さまの要望を叶えるために、実例をもとに、イメージの具体化と共有を図ることで出来上がった空間のイメージは和風住宅でありながら、NYのレンガ倉庫街(ブルックリン)を取り込んだ「WA(和&輪)ブルックリンスタイル」です。
キッチンのコンロ位置は汚れの面を考慮し北西入隅部で、尚且つ対面式がご希望でしたのでクラッソの特注寸法2列式をご提案しました。キッチンの壁はタイル仕上げで落ち着いた、重厚感のあるイメ-ジに。
ダイニングと和室にあった壁と天井を解体し、丸太の梁を現した空間にすることにより、圧迫感を省き、空間の有効活用が可能になりました。 構造を確保するために新たに設けた垂れ壁部分には、コンクリート打ちっぱなし風のクロスで、空間デザインも意識した遊びゴコロのある空間を表現。
床暖房を敷設した床には無垢のフローリングを使用。素足で歩いても気持ちの良い天然木の優しい肌触りと風合いで、毎日の生活をちょっと贅沢なものにしました。旧和室にあった障子や襖はそのまま活かし、黒色の自然塗料を使ってお客さまと一緒に塗装することで、部屋の個性を引き出しました。
Before/After
-
居室
リビング内装工事
Before
After
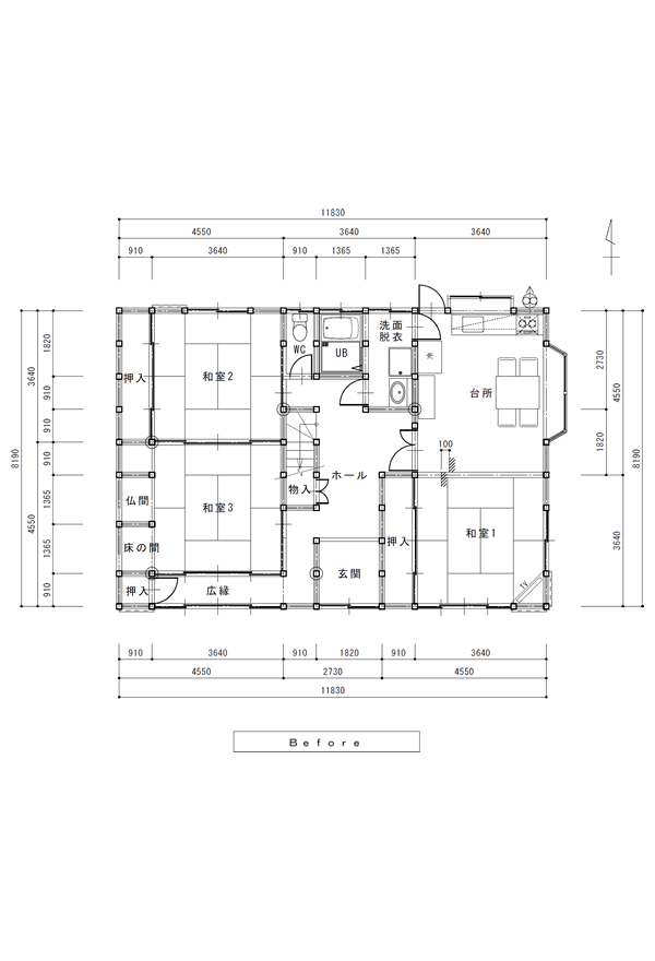
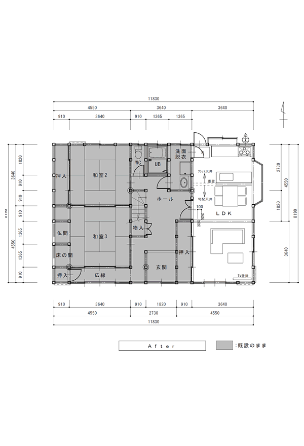
間取り
Before
After
同じカテゴリの施工事例を見る
理想の「くらし」のこと、考えはじめたら
理想のくらしを叶えるリフォームのヒントがたくさん詰まった事例集をプレゼント!ぜひ、参考にしてみてくださいね!
わが家のマイスターにおまかせください
わが家のマイスターは愛知・岐阜・三重エリアに展開。お近くの店舗のマイスターがお客さまに寄り添い、理想の「くらし」を叶えるお手伝いをします。
リフォームプランがお決まりの方は
ご相談内容がお決まりの場合はリフォーム条件をお伝えください。
相見積も喜んでご対応します。
相見積も喜んでご対応します。
店舗イベント実施中
店舗では定期的にイベントを実施しています。
まずはイベントへお気軽にご来店ください。
まずはイベントへお気軽にご来店ください。



